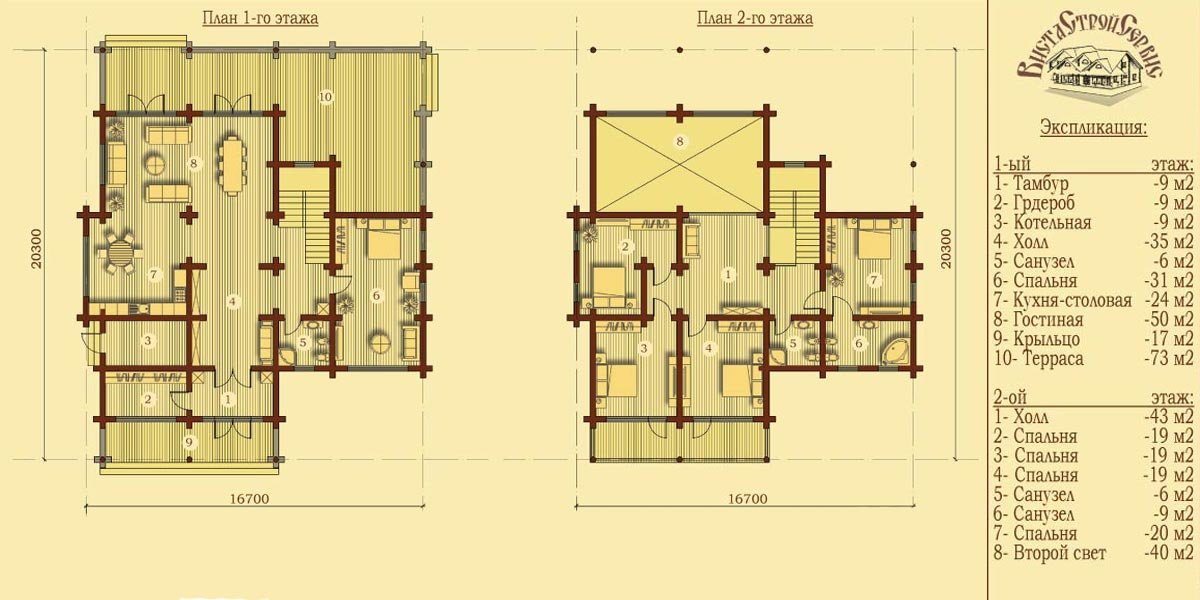
Экспликация
Деревянный дом из оцилиндрованного бревна «Бор-2»
Разрабатываем индивидуальные проекты по вашим пожеланиям.
Собственное производство и доставка в любой регион России.
Телефоны (8332) 73-16-12, 77-52-88 (пн-пт 800- 1700)
| |
| Для увеличения нажмите по изображению | |
| Общая площадь | 415 кв.м |
|---|---|
| Площадь балконов и террас | 107 кв. м |
| 1-ый этаж | 20300 х 16700 |
| 2-ой этаж | 20300 х 16700 |
| Объем бревен в диаметре 280мм | 228 м.куб |
| 1-й этаж | 2-й этаж | ||
|---|---|---|---|
| 1. Тамбур | 9 м2 | 1. Холл | 43 м2 |
| 2. Гардероб | 9 м2 | 2. Спальня | 19 м2 |
| 3. Котельная | 9 м2 | 3. Спальня | 19 м2 |
| 4. Холл | 35 м2 | 4. Спальня | 19 м2 |
| 5. Санузел | 6 м2 | 5. С/у | 6 м2 |
| 6. Спальня | 31 м2 | 6. С/у | 9 м2 |
| 7. Кухня-столовая | 24 м2 | 7. Спальня | 20 м2 |
| 8. Гостиная | 50 м2 | 8. Второй свет | 40 м2 |
| 9. Крыльцо | 17 м2 | ||
| 10. Терраса | 73 м2 |






