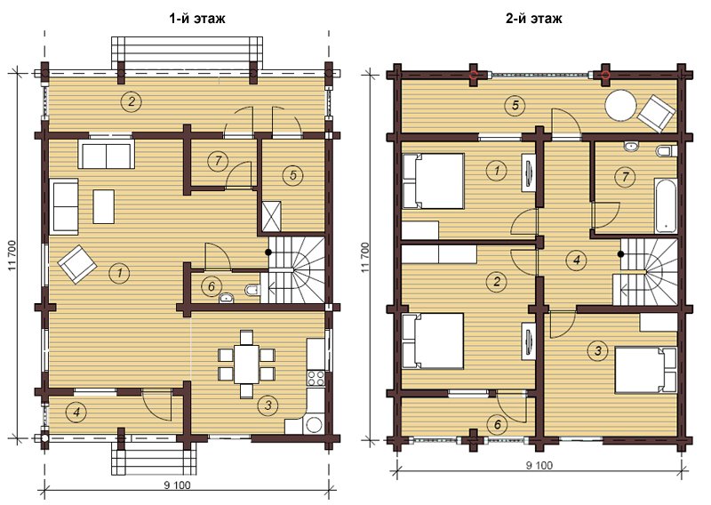
Экспликация
Деревянный дом из оцилиндрованного бревна «Загородный»
Разрабатываем индивидуальные проекты по вашим пожеланиям.
Собственное производство и доставка в любой регион России.
Телефоны (8332) 73-16-12, 77-52-88 (пн-пт 800- 1700)
| |
| Для увеличения нажмите по изображению | |
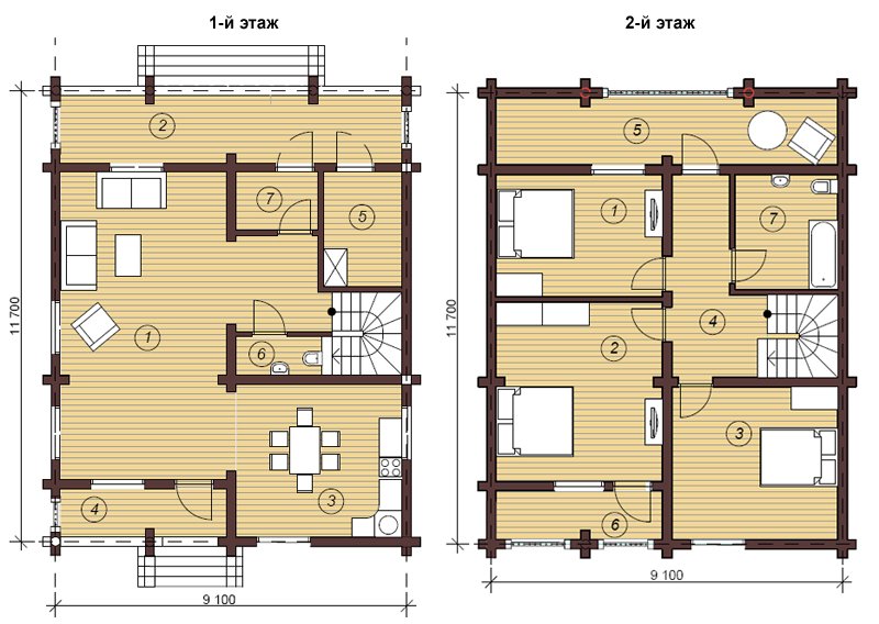
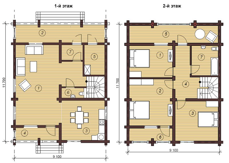
| Общая площадь | 182,34 кв.м |
|---|---|
| Площадь балконов и террас | 37,22 кв. м |
| 1-ый этаж | 11700 х 9100 |
| 2-ой этаж | 11700 х 9100 |
| Объем бревен в диаметре 220мм | 70 м. куб. |
| 1-й этаж | 2-й этаж | ||
|---|---|---|---|
| 1. Гостинная | 42,24 м2 | 1. Спальня | 13,62 м2 |
| 2. Террасса | 15,92 м2 | 2. Спальня | 19,99 м2 |
| 3. Кухня | 17,08 м2 | 3. Спальня | 17,08 м2 |
| 4. Крыльцо | 5,45 м2 | 4. Холл | 9,77 м2 |
| 5. Топочная | 5,01 м2 | 5. Балкон | 15,86 м2 |
| 6. Санузел | 2,32 м2 | 6. Балкон | 5,44 м2 |
| 7. Тамбур | 3,79 м2 | 7. Санузел | 8,45 м2 |
| Общая площадь | 92,13 м2 | Общая площадь | 90,21 м2 |





