Деревянный дом из оцилиндрованного бревна «Настя»

Разрабатываем индивидуальные проекты по вашим пожеланиям.

Собственное производство и доставка в любой регион России.

Телефоны (8332) 73-16-12, 77-52-88 (пн-пт 800- 1700)

Деревянный дом из оцилиндрованного бревна «Настя»
Деревянный дом из оцилиндрованного бревна «Настя»

Деревянный дом из оцилиндрованного бревна «Настя»

Для увеличения нажмите по изображению
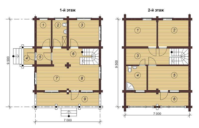
Общая площадь 110,82 кв.м
Площадь балконов и террас 20,45 кв. м
1-ый этаж 9500 х 7000
2-ой этаж 9500 х 7000

 

Экспликация

 

1-й этаж
2-й этаж
1. Котельная 4,46 м2 1. Спальня 9,35 м2
2. Санузел 4,46 м2 2. Спальня 19,43 м2
3. Спальня 9,32 м2 3. Холл 8,23 м2
4. Крыльцо 2,05 м2 4. Санузел 5,96 м2
5. Тамбур 2,73 м2 5. Спальня 11,63 м2
6. Холл 5,24 м2 6. Балкон 10,55 м2
7. Кухня 8,99 м2 Общая площадь 54,50 м2
8. Гостинная 9,17 м2
9. Терраса 9,90 м2
Общая площадь 56,32 м2

Оставьте заявку на расчёт стоимости

Мы оперативно свяжемся с вами и уточним подробности
или звоните
(8332) 73-16-12