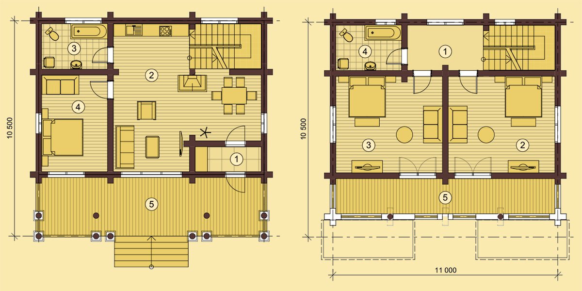
Экспликация
Дом Заволжское
Разрабатываем индивидуальные проекты по вашим пожеланиям.
Собственное производство и доставка в любой регион России.
Телефоны (8332) 73-16-12, 77-52-88 (пн-пт 800- 1700)
| |
| Для увеличения нажмите по изображению | |
| Общая площадь | 101,7 кв.м |
|---|---|
| Площадь балконов и террас | 50,6 кв. м |
| 1-ый этаж | 10500 х 11000 |
| 2-ой этаж | 10500 х 11000 |
| 1-й этаж | 2-й этаж | ||
|---|---|---|---|
| 1. Тамбур | 3,9 м2 | 1. Холл | 16,0 м2 |
| 2. Гостиная | 46,8 м2 | 2. Спальня | 24,6 м2 |
| 3. Санузел | 7,1 м2 | 3. Спальня | 24,6 м2 |
| 4. Спальня | 15,2 м2 | 4. Санузел | 7,1 м2 |
| 5. Терраса | 32,2 м2 | 5. Балкон | 18,4 м2 |





