Баня Переделкино
Разрабатываем индивидуальные проекты по вашим пожеланиям.
Собственное производство и доставка в любой регион России.
Телефоны (8332) 73-16-12, 77-52-88 (пн-пт 800- 1700)
| |
| Для увеличения нажмите по изображению | |
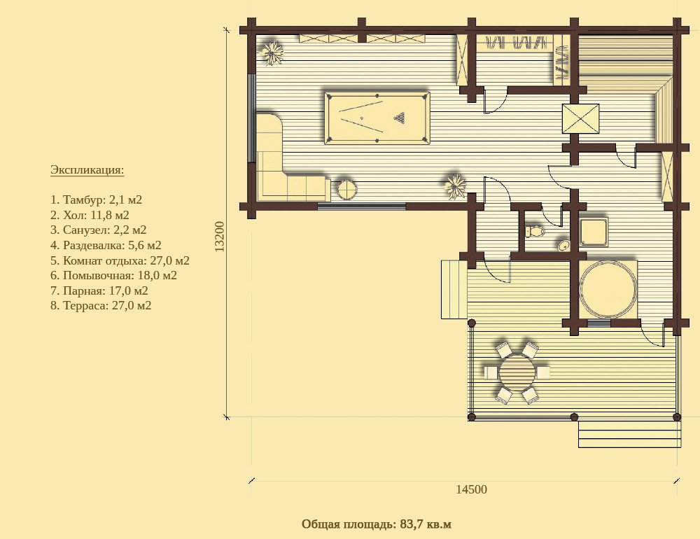
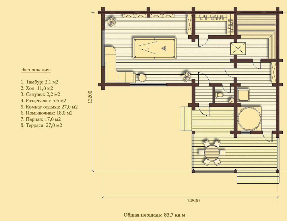
Общая площадь: 83,7 кв.м
Площадь террасы: 27,0кв.м
Экспликация:
1. Тамбур: 2,1 м2
2. Хол: 11,8 м2
3. Санузел: 2,2 м2
4. Раздевалка: 5,6 м2
5. Комнат отдыха: 27,0 м2
6. Помывочная: 18,0 м2
7. Парная: 17,0 м2
8. Терраса: 27,0 м2






